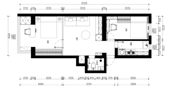
北京朝阳 54.16㎡八零筑一板楼2居,板楼2层采光优越,套内42.5㎡、层高2.5米,主打小户空间极致利用,核心打造大面宽阳光客厅。
主卧精简面积让位客厅,以墙+大玻璃做通透隔断,让阳光满溢整个公共区域,实现客厅空间感与采光双拉满。
餐厅规划于客厅临次卧角落,摆置小巧餐桌,同时容纳冰箱,化解厨房狭小痛点。
阳台承重垛子不拆,改造成实用小吧台,兼顾安全与休闲功能。
卫生间舍弃干湿分离,极简布局最大化释放使用空间.
一字型厨房合理规划动线,巧妙嵌入洗衣机,满足餐厨洗全功能。
次卧打造专属电竞房,仅布局床、2 米双人书桌与吊柜,功能聚焦电竞与办公,简约不杂乱。
整体改造围绕 “大客厅、强采光、多功能” 展开,让老破小八零筑一,变身适配现代生活的阳光舒适小家。


预约设计师免费出方案
今日已有289人获取设计方案

算算我家装修多少钱
今日已有289人获取装修预算

抢占样板间申请名额
今日已有1289人通过样板间申请